介绍:
UNCOMMON转租整套或其中一间
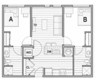
租期:2023年5月开始,走公寓官方sublease。可上门看房
公寓位于2楼,带一个小庭院,环境安静。
公寓楼下就是1,2路公交车,可快速直达学校。
公寓旁边就是Kroger和星巴克,楼下有必胜客,离 Popeyes和达美乐步行不到五分钟。
公寓自带学习室、健身房、瑜伽室、台球室、公用电脑和公用打印机以及免费咖啡机。
公寓提供车库,对宠物友好
楼下前台帮收快递
公寓刷卡进入,也有可视门铃
公寓自行配备保安。安全有保障。
联系方式:
- 微信:
- 联系备注:Niwenn租房

